Votre besoin concerne:
- Une étude de faisabilité ou opportunité pour la réalisation d'une nouvelle cuisine centrale, d'une cuisine satellite ou d'un restaurant scolaire,
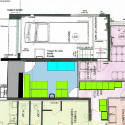
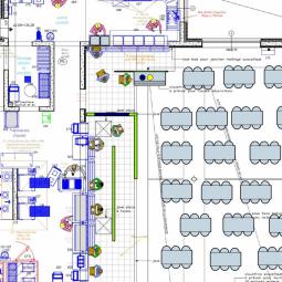
- la rédaction d'un pré-programme ou d'un programme pour la construction ou rénovation d'un nouvel équipement de restauration,
- une réorganisation des espaces et du matériel de cuisine ou de salle à manger,
- une projection en 3D avant travaux de cuisine ou lieu de distribution de repas,
- une réorganisation du travail en cuisine, service et remise en état des locaux,
- le calcul de vos besoins, dépenses en fonctionnement ou investissement avant l'ouverture d'un nouvel équipement de cuisine collective,
- un diagnostic de conformité sur l'hygiène et la sécurité alimentaire de vos locaux,
- un relevé des causes après un accident de service en cuisine,
- une adaptation de poste pour un agent de restauration en difficulté,
- une assistance technique pour la gestion de votre cuisine,
- une assistance pour le recrutement et l'évaluation de vos candidatures ,
- une aide à la rédaction du Plan de Maîtrise Sanitaire,
- un accompagnement pour la validation du dossier d’agrément sanitaire ,
ainsi que
tout autre conseil en management,

Le cabinet ACR vous apporte des solutions efficientes*
*efficient (qui aboutit à de bons résultats dans son travail, une bonne production, un bon rendement...)
N'hésitez pas à nous contacter !
Laurent DENOT consultant / formateur
SARL ACR - Copyright Tous droits réservés - Mentions légales - Contact
contact@acr.bzh
Réalisation du site : studio Nikkovico